2015
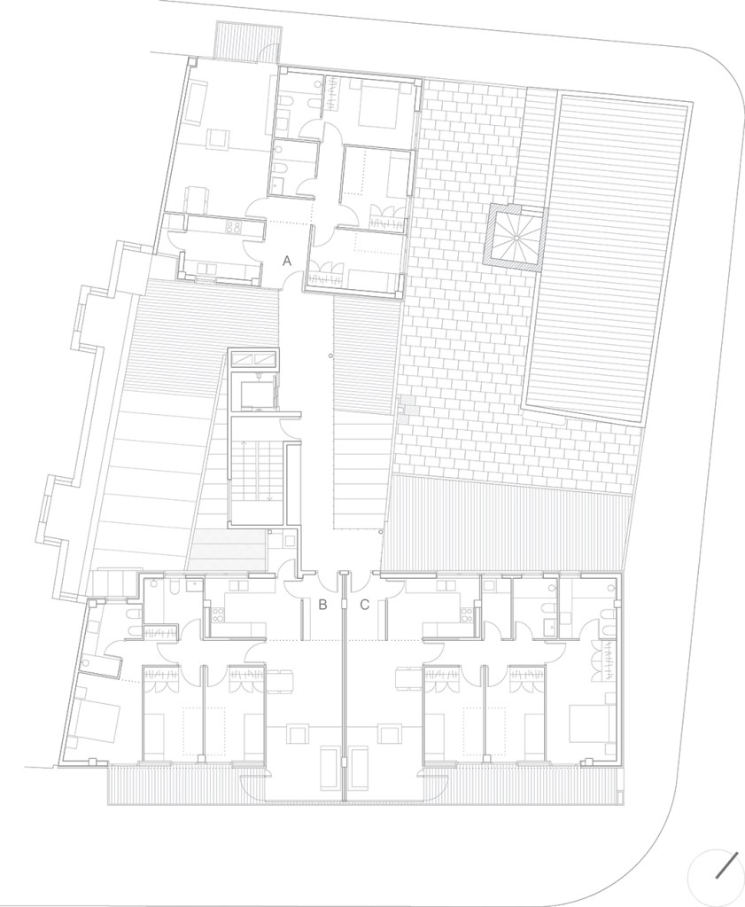
La parcel·la està situada en límit entre dues estructures urbanes molt diferenciades. Per una banda dona front a una avinguda construïda als anys 70 configurada per edificis de grans dimensions, i per l’altre a un teixit residencial de baixa densitat que va crèixer al llarg del segle XIX, amb cases d’estiueig envoltades de jardí.
L’edifici resol aquesta dualitat amb una organització en doble bloc: dos volums de proporcions anàlogues a les edificacions existents a cada un d’aquests fronts oposats. Aquesta configuració juntament amb les reduïdes dimensions de la parcel·la que propicien crugies de 8 i 9,60 metres, donen com a resultat uns habitatges amb condicions ambientals òptimes.
La parcela está situada en el límite entre dos estructuras urbanas muy diferenciadas. Por un lado da frente a una avenida construida en los años 70 configurada por edificios de grandes dimensiones, y por el otro a un tejido residencial de baja densidad que creció a lo largo del siglo XIX, con casas de veraneo rodeadas de jardín
El edificio resuelve esta dualidad con una organización en doble bloque: dos volúmenes de proporciones análogas a las edificaciones existentes en cada uno de estos frentes opuestos. Esta configuración junto con las reducidas dimensiones de la parcela que propician crujías de 8 y 9,60 metros, dan como resultado unas viviendas con condiciones ambientales óptimas.








